|
|
2016
|
|
| FEBRUAR 2016 |
19.02.2016 FF
Aufbau eines Staffelgeschosses MFH in Berlin, nur technische
Bearbeitung - Tragwerk - Brandschutz - Wärmeschutz
<--Straßen-,
Hofansicht
<--Der
Stahlbau
<--Stützenkopfdetail
|
2015
|
|
| MAI 2015 |
29.05.2015
EINTRAGUNG ALS ENERGIEEFFIZIENZEXPERTE FÜR FÖRDERPROGRAMME DES BUNDES
ERFOLGT

|
2014
|
|
| JULI 2014 |
16.07.BIS 08.09.2014
HAUS IM NORDEN ZUR ÜBERGABE
|
2013
|
|
| APRIL 2013 |
25.04.2013
ENDLICH FERTIG UND BEWOHNT:
DAS
HAUS DES ARCHITEKTEN
Der Grundriss und die
3-D-Simulation

|
| MÄRZ 2013 |
04-25.03.2013
HAUS IN BERLIN-MAHLSDORF FERTIGGESTELLT

|
| FEBRUAR 2013 |
25.02.2013
DAS MEDITERRANE HAUS IM MÜNSTERLAND IST FERTIG, NACH
VIELEN EIGENLEISTUNGEN

|
2012
|
|
| AUGUST 2012 |
09.08.12
HAUS
IN NORDDEUTSCHLAND - ALS ROLLSTUHLGERECHT FERTIG GESTELLT UND ÜBERGEBEN
Das zweite Haus in Norddeutschland wurde nun - nach
vielen
Eigenleistungen - übergeben, ein freundlicher Verblendbau mit hellen
Räumen (Beispiel Wohnraum) und elegantem Bad (hier der Duschbereich)
für Komfortbedürfnisse.

|
JUNI 2012
|
26.06.12
AUCH DAS ZWEITE
NEUENHAGENER
HAUS KOMMT VORAN, DIE ROHRVERLEGUNG FÜR
DIE KOMPLEXE ANLAGE MIT ZUKÜNFTIGER GRAUWASSERRÜCKGEWINNUNG IST FAST
FERTIGGESTELLT IM
HERGESTELLTEN UNTERBAU DER SOHLPLATTE
Auf diesen Unterbau kommt nun die klimaaktivierte
Sohlplatte mit
Perimeterdämmung

AUCH DAS ZWEITE
NEUENHAGENER
HAUS WURDE BEGONNEN, DIE ERDARBEITEN SIND NAHEZU ABGESCHLOSSEN
Auf diesen Aufbau kommt die klimaaktivierte
Sohlplatte mit
Perimeterdämmung

|
MAI
2012
|
25.05.12
TEILNAHME BEI DEN BERLINER ENERGIETAGEN 2012
LINK ZUR WEBSITE: www.berliner-energietage.de
Die
diesjährige Tagung stand zu einem großen Teil in der Erwartung der
neuen EnEV 2012, die sich im politischen Bereich noch in der Diskussion
befindet und sicher erst zum Jahre 2013 zu erwarten ist. Sie wird im
Wesentlichen weitere Verschärfungen hin zu mehr Nutzung von
regenerativen Energien bringen, dazu größere Effizienz bei der
Energienutzung im Bereich Heizwärme, die immer noch fast 40% des
gesamten Energieeinsatzes in Deutschland verschlingt. Hier wird vor
allem ein verstärktes Auge auf die Sanierung gelegt werden. Ohne
staatliche Finanzierungshilfen werden jedoch die stetig steigenden
Energiepreise noch keinen Anreiz zur Verbesserung der Performance der
Wohngebäude bringen, zumal die Masse der Bewohner (sei es über die
Miete oder aus eigenen Mitteln) die Beträge zur Sanierung nicht
aufbringen können, die zwischen 30.000 und 100.000 € je WE liegen.
Dabei kann schon eine verbesserte Heiztechnik bis zu 50% der
Ersparnisse bringen, was bedeutet, dass i.d.R. mit einem Aufwand von
zwischen10.000 und 20.000 € dies die proportional kostengünstigste
Verbesserung ist. Gleich dahinter liegen die Dach- und die KG-Deckung,
danach Wanddämmungen und als proportional teuerste Verbesserung ist der
Umbau der Fenster zu nennen, da hier die Energieverluste nur knapp 10%
der Heizenergie ausmachen, die Sanierung jedoch i.d.R. im gleichen
Kostenbereich liegen wie die Anlagentechnik selbst.
Bei
der Hülle (Wände, Decken, Dächer, Bodenplatte, Fenster) hat sich außer
im Fenstersystembereich (integrierte Fenster für Dämmung, Lüftung und
Sonnenschutz) keine größere Verbesserung gegenüber den Vorjahren
ergeben, wenn man von jetzt höchstdämmenden Materialien absieht.
Die
interessantesten Neuerungen sind im Bereich der Anlagentechniken und
den dahinter stehenden Philosophien zu sehen. Hier sieht es so aus,
dass man wohl Blockheizwerke und die Wärmekraftkopplung als gute
Übergangslösungen darstellen kann, da sie - zwar auch mit regenerativen
(Bio-) Massen - hauptsächlich mit Gas bzw. Öl befeuert werden müssen.
Die Zukunft gehört den solaren und auf Umweltwärme beruhenden
Techniken, seien es Solarenergie, PV oder Erdwärme. Ineffektiv, obwohl
Umweltwärme, ist hierbei die Luft-WP, da sie die Primärenergie Strom
nicht so hochwertig umsetzt, wie z.B. die Erd-WP.
Bei
Sanierungen können alle diese Techniken in Frage kommen, aber auch -
als ökonomische Variante für Bewohner, die mit knappen Mitteln rechnen
- kleinere Lösungen wie die Nutzung vorhandener Techniken (Gas- oder
Ölbrennwertthermen) kombiniert mit Solaranlagen zur
Trinkwasserbereitung und Heizungsunterstützung, so wie Dämmung in
Dächern und KG-Decken.
Auf
einer übergeordneten Ebene kommt es bei den neuen Techniken der
dezentralisierten Erzeugung von Strom aus PV und Blockheizwerken auf
die Umgestaltung der Netze und den Aufbau virtueller Kraftwerke an,
wozu auch die Umstellung der zentralen Stromerzeugung mit
Windkraftwerken und großflächiger PV drängt.
|
| APRIL
2012 |
07.04.12
AUS ALT MACH NEU - GILT
AUCH FÜR
WOCHENENDHÄUSER
Dieses WE-Haus wurde unter Mitwirkung des Büros auf einen modernen
Stand gebracht. Vorgefunden - beplant - umgesetzt und fertig!
<--SO SAH ES VORHER AUS
<---UMPLANUNG
<--UMBAU
<-- SO SIEHT ES JETZT AUS
|
| MÄRZ
2012 |
09.03.12
WEITERES NEUES EFH KURZ VOR
BAUBEGIN IN NEUENHAGEN
Das
bereits für ein anderes Grundstück geplante und nun auf das aktuelle
Grundstück umgestellte EFH steht kurz vor dem Baubeginn. Es wurde in
einer variierten Form bereits im April 2011 unter "NEUES" vorgestellt.
Hier nun die
endgültige Form:

TEILNAHME AM 3. BAUTAG BERLIN-BRANDENBURG
Der
Bautag beschäftigte sich mit
Effizienzhäusern, Green Buildings und Dämmlösungen, mit deren Kosten -
direkte und volkswirtschaftliche, so wie mit rechtlichen Risiken bei
Planungs- und Beratungsfehlern in diesem Bereich. Der Bautag schloss
eine Besichtigung der Baustelle des neuen Flughafens Berlin ein.

|
| FEBRUAR
2012 |
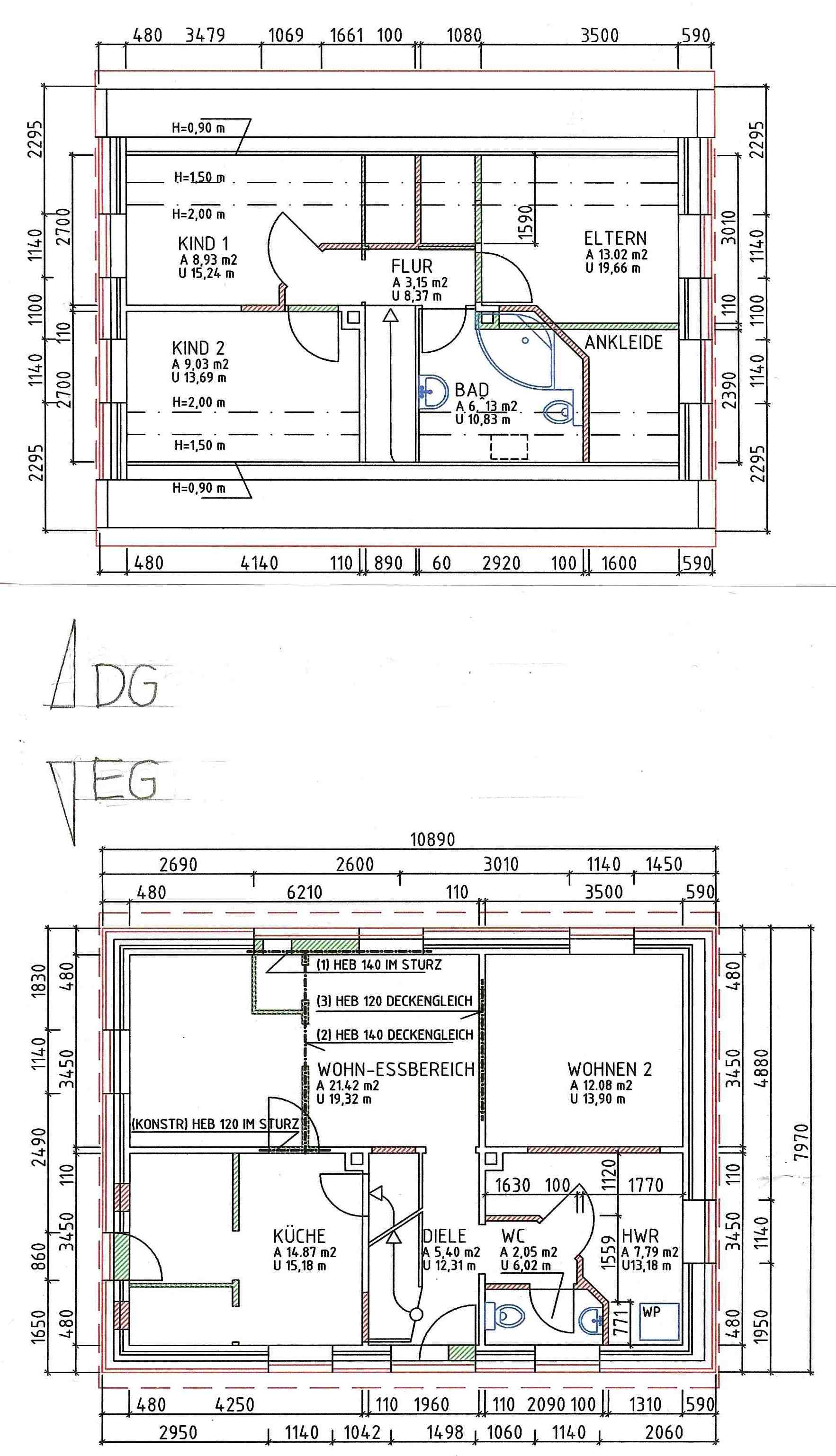
24.02.12
NEUES
EFH IN PLANUNG FÜR BERLIN
Nach
langen
(2-jährigen) Finanzierungsverhandlungen geht es mit dem unten
dargestellten 220 m2-Haus in die nächste Runde: Anpassungsplanung,
Bauantrag und Bau:
<EG <OG <ANSICHTEN
23.02.12
BESUCH DER BAUTEC BERLIN
Um
die Performance auf dem neuesten Stand zu halten, wurde ein Besuch der
Bautec in Berlin durchgeführt. Vor allem die neuen Heiz- und
Energiespartechnologien waren sehr interessant. Bald werden neue Entwicklungen in
unsere Hausbauprojekte einfließen.
|
2011
|
|
|
|
| DEZEMBER
2011 |
STOLZER RÜCKBLICK AUF 2011 UND
HOFFNUNGSVOLLER AUSBLICK AUF 2012
Nach der weitgehenden Konsolidierung im Jahr 2011 kann nun
hoffnungsvoll auf das Jahr 2012 nach vorne gesehen werden.
Die
eigenen Aktivitäten laufen nun vollkommen auf Eigenkapitalbasis, ohne
Banken in Anspruch nehmen zu müssen, außer für kurzfristige
Durchlaufposten. Dadurch ist ein störungsfreier wirtschaftlicher Ablauf
gesichert. Darüber hinaus wurde das Transportwesen auf öffentlich
darstellbare Transporte umgestellt und damit von den Kosten her
verschlankt bei Beibehaltung der vollen Flexibilität. Ein eigenes
Stadtfahrzeug bleibt noch als Fuhrpark zurück.
Das
bereits erreichte und immer weiter steigende hohe
professionelle Niveau wurde durch laufende Eigenstudien und Teilnahme
an einschlägigen Seminaren
ständig weiter
erhöht und auch in der Zukunft ausgeweitet werden.
Freuen Sie sich wiederum auf weiter verbesserte Produkte für das nächte
Jahr, vor allem im Bereich energiebewusstes und -optimierendes, so wie komfortbezogenes und barrierefreies
Bauen und
Sanieren.
|
| NOVEMBER
2011 |
18.11.11
FLACHDACHSYMPOSIUM
IN
DER BAM
Mit verschiedenen Partnern aus der
Wirtschaft veranstaltete die BAM ein Flachdachsymposium, bei dem
praktische Aspekte zur Technik, Normen und der rechtlichen Beurteilung
der Schnittstellen zwischen Flachdächern und anliegenden Bauteilen
besprochen wurden.
Das Symposium
diente uns
Architekten und Ingenieuren zur Verfestigung, Vertiefung
und Erweiterung der
bestehenden Kenntnisse, um damit den Service für undere Kunden zu
verbessern.
 
TEILNAHME AM AIT-SYMPOSIUM
AKUSTIK
Während des Tagessymposiums wurden
die Kenntnisse der Problematik der
Bau- und Raumakustik erneuert, die neuesten wissenschaftliche
Kenntnisse hierzu aufgearbeitet und die neuesten Antworten hierzu auf
technologischem Gebiet aufgezeigt, inkl. der Materialanwendungen.
 |
JUNI
2011 |
21.06.11
TEILNAHME AN DER VERANSTALTUNG

|
MAI 2011
|
30.05.11
SEMINAR ZUR NEUEN DIN 18040-1 ZU BAUEN FÜR BEHINDERTE - KONZEPT UNSERER
SENIORENGERECHTEN KOMFORTHÄUSER BESTÄTIGT
Während eines
Seminars
wurde die neue DIN 18040-1 vorgestellt, die das Bauen für Behinderte
regulieren soll dergstalt, dass Behinderte so gestellt werden, dass sie
bauliche Installationen in gleicher Weise benutzen können wie
Nicht-Behinderte. Das heißt, dass alle Installationen für Behinderte
und Nicht-Behinderte gleich nutzbar sind. Zu diesem Zweck (nach
rollstuhlgerechtem Bauen) kommen jetzt seniorengerechte und blinden-
und taubstummengerechte etc. Features, solche wie akustische und
visuelle Alarme, große Schriftzeichen in Blickhöhe, Höhen und
Tastmöglichkeiten für Bedienungselemente etc.
Zunächst gilt diese DIN nur für öffentliche Bauten, die ergänzende DIN
18040-2 für Wohngebäude wird demnächst dazu kommen und reguliert
Raumgrößen und weitere wohnspezifische Aspekte.
Unsere seniorengerechten Komforthäuser sind in weitem Maße bereits auf
diese neue DIN abgestellt.
23.05.11
TEILNAHME
AN VERANSTALTUNGEN DER BERLINER ENERGIETAGE

AUF
DER
SEITE TYPENHÄUSER 3-D-DARSTELLUNGEN EINGEFÜGT
Auf der Seite
Typenhäuser wurden 3-D-Darstellungen
eingefügt, die eine bessere Vorstellung der Häuser erlauben. Auf
Anfrage könne auch hier im Büro oder bei Ihnen zuhause weitere
Animationen der Typenhäuser vorgeführt werden.
NEUES EFH IM BAU - NACH
LANGER
WINTERPAUSE
Hier erste Bilder
vom
ersten neuen EFH, dass nach der
langen Winterpause begonnen wurde: Zur Erinnerung die erste Skizze,
danach die 3-D-Darstellung und der Bau der Gründung. Zur Zeit sind die
Wände im Aufbau und schon in der nächsten Woche wird Richtfest sein.


|
APRIL 2011
|
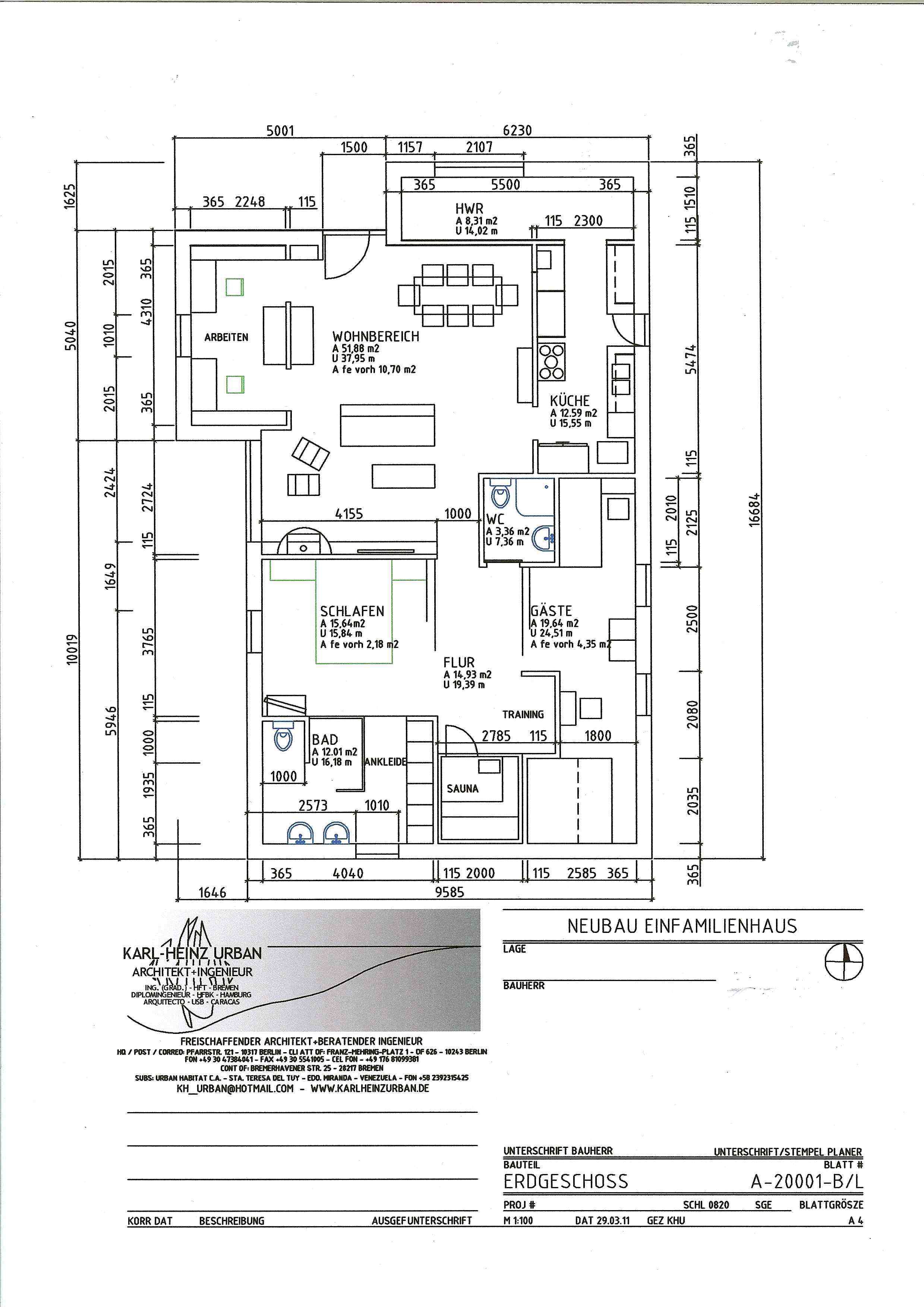
08.04.11
NEUES EFH DER DESIGNLINIE
NEON
MIIT BESONDEREN MERKMALEN
Das geplante Haus
hält
weitgehend offene Bereiche bereit - fast wie ein PDH -, freie Übergänge
ohne Türen - außer Gästebad (Schiebetür) - und Wände fast überall bis
zu 2,25 m
Höhe, die die Decken der Raumfolgen mit 2,50 m Höhe durchgehend
erscheinen lassen, bestimmen die innere Erscheinung des Hauses. Gäste-
und Privatschlafbereich sind durch leichte Schiebevorhänge abgetrennt.
Ein Blick auf die nachfolgenden Bilder erläutern und unterstreichen
dieses Erscheinungsbild. Außer an den massiven Wänden der Duschbereiche
(Dusche im Hauptbad am Schlafzimmer dabei mit 3 Glaswänden und
Walk-in-Closet) und im
Wohnzimmer an der Kaminwand sind alle Wände malerfertig gespachtelt,
teilweise lackiert zur Durchfeuchtungssicherheit. Die Fußböden sind mit
terrazzoähnlichem, farbigen Industrieestrich bekleidet und geben diesem
Haus einen klaren und sauberen Ausdruck.

04.04.11
NEUE
PLANUNGSSOFTWARE
Zur besseren
Visualisierung
der Entwürfe während der interaktiven Arbeitsfase mit dem Bauherrn
kommt eine neue Software zum Einsatz, die eine 3-D-Darstellung mit
virtueller Begehung des Hauses und Vogelperspektive bietet. Ein
typischer Ausdruck kannhier als pdf.-Datei heruntergeladen
werden.
|
JANUAR/FEBRUAR 2011 |
25.01.11
ENERGETISCHE SANIERUNG - BESSERE
LEISTUNGEN AB SOFORT
Ab
sofort - und nach den Erfahrungen im neuen Leistungsbereich
"Energetische und allgemeine Sanierung" während des letzten Jahres, so
wie den verschärften Vorschriften hierzu - wird die
Mindest-Standardleistung KfW 115 durch die Mindest-Standardleistung KfW
100 ersetzt, der vorige bessere Leistungsbereich KfW 100 durch den KfW
70, da der Sprung von KfW 100 auf KfW 85 (auch zulässig) auf KfW 70
kaum technische Mehrleistungen erfordert und sich kostenmäßig kaum
auswirkt, so dass KfW 85 nicht lohnend erscheint.
Weiterhin ist der Mindeststandard beim
Neubau KfW 70.
Weitere Informationen unter HAUSBAU UND ENERGETISCHE SANIERUNG.
|
2010
|
|
NOVEMBER 2010
|
12.11.10
- ENERGETISCHE UND GESAMTSANIERUNG
EINES EFH IN NORDDEUTSCHLAND
Auch
kleinere Aufgaben werden hier
übernommen, in diesem Falle die Sanierung eines EFH, inkl. Energetik.
Dies Haus aus den 50er Jahren hat - trotz in den 70er Jahren erfolgter
Renovierung - eine unbefriedigende Raumaufteilung und vollkommen
inadäquate Dämmung und Anlagentechnik, nämlich 24 cm starke
Ziegelaußenwände und ungedämmte Sohlplatte, so wie kaum gedämmte
Dachausbildung. Die Heizung besteht aus einer Ölheizungsanlage mit
Heizkörpern.
Es soll eine Gasbrennwerttechnik
mit FB-Heizung inkl. Sohlplattendämmung, Solaranlage und Kamin mit
Wassertasche eingebaut
werden. Darüber hinaus ist eine substantielle Verbesserung der Hülle
durch Fensteraustausch (von 2- zu 3-Scheibenglas mit verbesserten
Rahmen), Vorbau einer 14-cm-Dämmung mit Verklinkerung der Außenwände
zur Beibehaltung der gegenwärtigen Ansicht,
so wie eine neue Dachdeckung mit 24 cm Dämmmaterial in diesem Bereich.
Von gegenwärtig mehr als 310 % des
zulässigen Primärenergiebedarfs des
Gebäudes erfolgt eine Absenkung auf 90% dessen, was für einen Neubau
der gleichen Größe zulässig wäre, d.h. eine Energieresparnis von ca.
2/3 gegenüber vorher!. Die Kosten für die Gesamtmaßnahme liegen bei ca.
85000 €, von
denen 50000 € von der KfW bezuschusst bzw. mit einem niedrig verzinsten
Kredit gefördert werden.
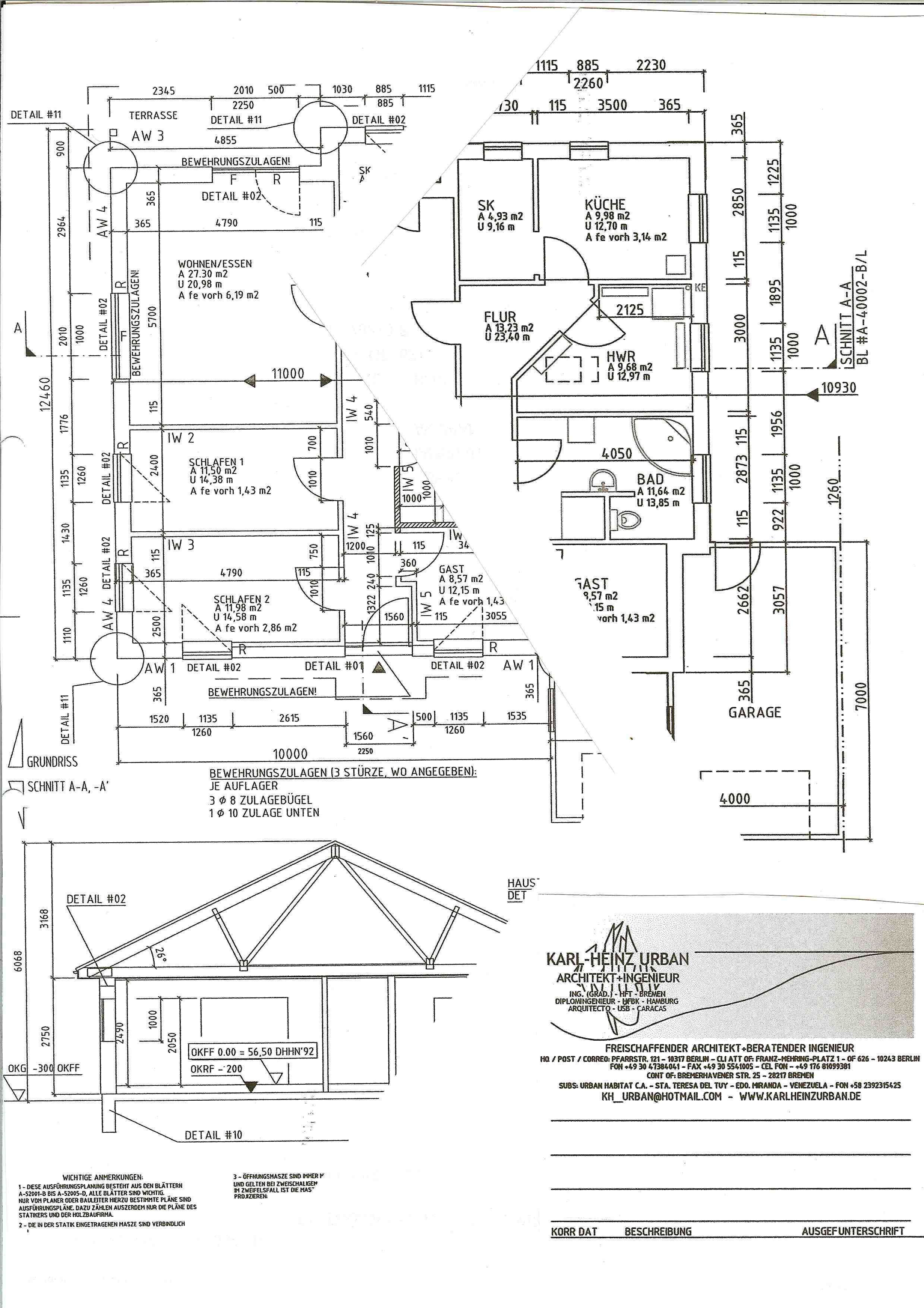
Jetziger Zustand des Hauses: Malerisch aber eine unbequeme
Energieschleuder:
Der Originalplan und
die Bestandsfotos
von 1952

Die Umplanung zu einem funktional und energetisch
hochwertigem EFH:
Die
Grundrisse
und eine perspektivische Skizze

|
OKTOBER 2010
|
19.10.10
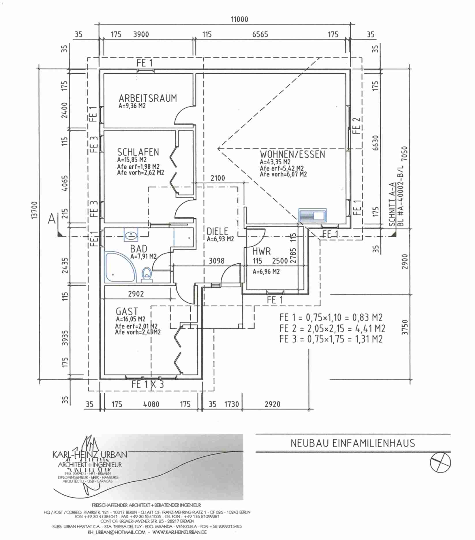
- NEUES HOCHWERTIGES EFH GEPLANT - BAUBEGINN IM FRÜHJAHR
2011
Wieder
ist hier
ein neues hochwertiges und energieeffizientes EFH geplant
worden (KfW 70), das im Frühjahr 2011 begonnen und
ca. August 2011 fertig
gestellt wird.
Doch schon stehen weitere Planungen in den nächsten Wochen an. Es wird
darüber berichtet werden.
Unten bildhaft der Planungsablauf von der ersten Handskizze über den
konkreten Entwurf zur effeltiv detaillierten Ausführungsplanung.
Die Ausführungsplanung wird im Rahmen der Design-Build-Methode laufend
an die Kundenwünsche angepasst bis zur Fertigstellung des Hauses.
|
SEPTEMBER 2010 |
TEILNAHME AM WOHNBAUKONGRESS IN BERLIN: ENERGIEEFIZIENZ I
NEUE TECHNOLOGIEN I LOGISTIK

Themenkreise zu
- Energieefizienz von Gebäuden
- Neue Dimensionen im Leichtbau
- Logistik-Optimierung von Baustellenprozessen
- Ausblick - welche Wohnungen brauchen wir in Zukunft?
Es wurden unter dem Sponsoring der unten stehenden Firmen Ergebnisse
erarbeitet, die darauf hin weisen, dass die Zukunft bei energetisch
hochwertigeren, komfortableren Wohneinheiten liegt, sowohl was den
Neubau anbetrifft, als auch die Sanierung. Dies ist durch 2 Faktoren
bedingt: Die Erfodernisse der Energieeinsparung durch das EEG und das
EEWärmeG, deren Instrument die EnEV 2009 ist, so wie der Anpassung an
die älter werdende Bevölkerung und deren Nachfrage nach barrierefreien
Wohnungen. Zum Erreichen dieser Ziele bei geringen Kosten ist eine
weitere Standardisierung bei den immer hochwertigeren und
leistungsfähigeren Materialien und eine noch weiter verbesserte
Baustellenlogistik zur Reduzierung des Arbeitseinsatzes erforderlich.

|
| AUGUST 2010 |
DAS
NEUE MODELL "POST DESIGN HOMES" IST FERTIG GESTELLT UND
UNTER
NEON
ABRUFBAR.
Das neue Modell zeichnete sich
dadurch aus,
dass in einer sehr einfachen und klaren Kubatur (die natürlich auch
Kurven beinhalten kann) Flächen zur Verfügung gestellt werden, die
individuell beplant werden können. Gewisse Vorgaben ergeben sich aus
den
Fensteröffnungen, die paarweise in einem gewissen Rythmus angeordnet
sind. Im Vorfeld kann der Kunde hier gewisse Änderungen vorgeben,
ebenso bei der Form der Kubatur. Eine pdf-Datei zu einem beispielhaften
Basisgrundriss von ca. 145 m2 ist ebenfalls unter
NEON abrufbar.
Wie
schon im Juli angekündigt, werden Festkosten inkl. der Betreuung bis
zum Abschluss der Bauarbeiten abgerechnet. Im Inneren des Hauses können
nach den Wünschen des
Bauherrn die Raumeinbauten im Rahmen der Design-Build-Methode erfolgen,
wobei der Bauherr sich alle Sub-Produkte entweder von meinem oder über
mein Büro beistellen bzw. einkaufen lassen kann oder dies auch selbst
veranlassen kann, inkl. Hilfestellung meines Büros hierzu, da die
Betreuung - wie gewohnt - bis zum Abschlussdes BV gewährleistet ist.
Unter HAUSBAU
werden die Kosten angegeben, unter BAUBESCHREIBUNGEN die speziell für dieses
Modell angepasste Leistungsbeschreibung.
Hierunter ein Vorschlag für die typischen Ansichten dieses Modells:
 |
MAI
2010
FEBRUAR 2010I
|
TEILNAHME AN DEN BERLINER ENERGIETAGEN -
TRENDS

Die diesjährige Teilnahme an den "Berliner
Energietagen"
hat viele wichtige Erkenntnisse
erbracht, u.a. die verstärkte Tendenz zur Trennung zwischen
30-50-jähriger Nutzung der Gebäudehülle und deren Anpassung an
erwartete Standards für die Zukunft, d.h. Verstärung der Dämmung schon
jetzt, da hier keine grundlegenden Verbesserungen mehr möglich und auch
nicht erforderlich sind. Dabei wird es aber notwendig werden, sich im
anlagentechnischen Bereich in regelmäßigen Abständen an die
aufkommenden Neuerungen anzupassen, was einschließt, schon jetzt im
Neubau auf eine Niedrigtemperaturverteilung im Heizungsbereich
abzustellen. Die Anlagentechnik bei der Erzeugung der Heizwärme wird
dabei in einem 15-20-jährigen Rythmus angepasst werden müssen, vor
allem angesichts der ständig verschärften gesetzlichen Anforderungen.
Mechanische Lüftung mit Wärmerückgewinnung verhindert den Verlust von
Heizenergie durch freies Lüften und verhindert Schimmelbildung und
Feuchte im Bauwerk.
Eine BUS-gesteuerte Energieverbrauchskontrolle bringt dazu wesentliche
Einsparungen (bis zu 15%) im gesamten Spektrum von Heiz-, WW- und
sonstigen elektrischen Verbrauchsenergien (Beleuchtung etc.). Die KfW
fördert diese Energieeinsparungen und wird zum 01.07.10 die Bedingungen
verschärfen und gleichzeitig neue Effizienzklassen und
Subventionsmaßnahmen in Kraft setzen, die jetzt schon angekündigt
sind (KfW).
BESUCH DER BAUTEC

Während des Besuches der
BAUTEC 2010
wurden wiederum viele
informative Fachgespräche zu neuen Baustoffen, vor allem im
Recyclingbereich und zu Verbesserungen im Bereich der alternativen
Energien für EFH geführt.
Besonders
interessant
waren in diesem
Jahr wieder die
Verwendung von Holzüberresten bei Dämmstoffen und bei Altglasschäumen
als dämmender Unterbau von Sohlplatten. In diesen Bereichen werden
interne Studien zur Verwendbarkeit bei der eigenen Planung und
Umsetzung von EFH eingeleitet werden.
Darüber hinaus
gab es
auch einiges Neues
im Bereich der
alternativen Energienutzung, jedoch keinen bahnbrechenden Durchbruch.
Hier bestätigte sich die bereits eingeleitete eigene Richtung bei EFH. |
2009
|
|
NOVEMBER
2009 |
TEILNAHME AM ARBEITSKREIS ZU
SENIORENIMMOBILIEN
Dieses wichtige Event untersuchte und
bewertete
die aktuellen Fortschritte im Bereich dieser Immobilien und setzte
Grundlagen für den Entwurf technischer Details (z.B. die z.Zt. in
Überarbeitung befindliche DIN 18025 und daraus resultierende
Mindestanforderungen), die auch für komfortables Wohnen mit Blick auf
die Zukunft schon jetzt angewandt werden sollten, so wie den Einbau von
BUS-Systemen für häusliche elektronische Hilfsfunktionen. Während die
o.g. technischen Details bereits in unseren Seniorenhäusern
berücksichtigt sind, werden die genannten BUS-Systeme ab sofort
erhältlich sein, was Mehrkosten von ca. 100 - 200 €/m2 Wohnfläche
ausmachen wird, je nach Wunsch des Kunden. Demnächst wird hier ein
Katalog mit detaillierten Beschreibungen der einzelnen Module und deren
Kosten erscheinen.
|
OKTOBER 2009 |
TEILNAHME
AN DER VERANSTALTUNG "TRENDS DER GEBÄUDEINTEGRIERTEN PHOTOVOLTAIK"
Es
wurden aufgezeigt zur
- Gestaltung:
Additive, collageartige und
integrierte
Installation von Photovoltaikelementen, mit starkem Trend zur
letzteren, vor allem flexible Dünnschichtmodule
-
Technik: Die Lösungen sind
technisch weit fortgeschritten
(Ausbeute zwischen 6 Prozent bei Dünnschichtmodulen auf
Siliziumbasis und 19 Prozent bei monokristallinen Modulen), jedoch ist die Integration in Bauverwaltungsrecht und
-normung noch ca. 5 Jahre hinter der Entwicklung zurück, zu weit, um
eine normale allgemeine Anwendung zu er möglichen.
- Zukunft: Die
Integration der
Photovoltaik in das
Energiemanagement hat Chancen nur, wenn - für den EFH-Bereich -
gleichzeitig die planerische Integration der Elemente mit geringem
Luminarverbrauch (LED) und größerer Standardisierung bei sinkenden
Herstellungskosten und flexibleren Anwendungstechniken kombiniert
werden können. Heute zu errichtende Bauwerke können jedoch durch
Ausrichtung großer glatter Flächen (z.B. Dächer), vielleicht in der
Schräge installiert, in Südrichtung vorbereitet werden (ähnlich
Solaranlagen). Dazu werden Räumlichkeiten und technische Vorrichtungen
für die Aufnahme der Steuer- und Energietransfer- bzw. Speicherelemente
benötigt.
-
zum Technologischen Transfer: Im Internet Stadt Berlin gibt es
Informationen zum TSB Transfer BONUS für kleine Investoren
Hierunter Fotos
vom Event, von links
nach rechts:
Offizielles Einladungsblatt - bei der Lektüre der Bildtafeln -
Impressionen - Modell des geplanten Forschungszentrums

NACH
PROBELÄUFEN WIRD EINE AN EFH ANGEPASSTE DESIGN-BUILD-METHODE EINGEFÜHRT
Nach
Probeläufen in den letzten betreuten BV wird ab sofort für alle neuen
BV eine an EFH angepasste Design-Build-Methode eingeführt, die es
erlaubt, bis kurz vor Herstellung bestimmter Bauabschnitte
Änderungswünsche der Kunden in die Errichtung einzuarbeiten. Dies
geschieht normaler Weise in eher improvisierter Form und führt zu
Verzögerungen und Kostenerhöhungen beim BV. Nun wird durch die neue
Methode den Kunden die Möglichkeit gegeben, während des Bauablaufes in
geordneter Weise und vor Erreichen vereinbarter
Abschnittsschlusszeitpunkte Änderungen der Ausführung einzubringen,
ohne dass dies zu Gesamtverzögerungen bzw. erhöhten Kosten wegen
vorzunehmender Rückbauten führt. Diese Methode erhöht den Komfort für
die Bauherren und hält die Ausführungszeit und Kosten im vorgegebenen
Rahmen..
|
MAI BIS AUGUST 2009 |
NEUER
KOOP-VERTRAG MIT TYCONHOMES UND
WIEDER EIN NEUES
KFW-HAUS AUSGEFÜHRT - DIESMAL ALS NAEFH!
Von der
Traumvorstellung über die Pläne zur Ausführung:
Der Beginn
- die Traumvorstellung
Hierüber die
konkrete Planung---^
Hier
nun das, was aus dem Traum im Mai geworden ist:
Hier
nun das, was aus dem Traum im Mai geworden ist:

AUCH DIES
KFW-HAUS FERTIG GESTELLT
Das
Massiv-Haus ist
fertig gestellt, wie das oben dargestellte NAEFH-Haus

|
MÄRZ 2009 |
NEUES
HAUS MIT HOHEN DÄMMSTANDARDS FERTIG GESTELLT
Ein
weiteres Haus mit hohen Dämm- und Ausstattungsstandards wurde fertig
gestellt und an den Bauherrn übergeben.

|
2008
|
|
JULI 2008
|
HÄUSER DER NEUEN
KFW-60-BAUREIHE FERTIG
GESTELLT



|
#MAI 2008 |
TEILNAHME AN DEN
BERLINER ENERGIESPARTAGEN
Zur Verbesserung
der Ökoperformance der
hier geplanten EFH wurde die Teilnahme an den Berliner Energiespartagen
als Hörer verschiedener Vorträge erfolgreich durchgeführt.
|
APRIL 2008
|
3 NEUE KfW-HÄUSER
IM BAU IM BERLINER
UMLAND
Unten Bilder der
verschiedenen Stadien
der im Bau befindlichen Häuser, die voraussichtlich in den Wochen 21,
24 und 26 nach jeweils 4-monatiger Bauzeit fertig gestellt sein werden.

|
FEBRUAR 2008
|
TEILNAHME AN
EINER FACHVERANSTALTUNG
BETON
Am 07.02.08 fand
eine Fachveranstaltung
der TU Berlin, der CEMEX Deutschland AG und des InnovationsZentrums Bau
Berlin e.V. statt, an der ich Teil nahm (Bildmitte) und bei der sich
400 Planer über „Innovationen bei zementgebunden Baustoffen“
informierten.

DAS NEUE MODELL
(DESIGNLINIE) SIMPLEX
Als Ergänzung im
unteren Kostenbereich
ist die neue Designlinie SIMPLEX
in die Designlinie Kubus integriert worden.
|
|
2007
|
|
|
OKTOBER 2007
|
NEUER
LEISTUNGSBEREICH WEBDESIGN - NEUE
DESIGNVORGABEN FÜR DIE PLANUNG
Aufarbeitung der
gesamten Website durch
den neuen Leistungsbereich der eigenen Webdesignabteilung: Die Site ist
jetzt noch gefälliger und besser lesbar. Ebenso wurden die Blätter BÜROVORSTELLUNG
und CURRICULUM VITAE
nach einer langen verstärkten Erneuerungs- und Selbststudienfase
zwischen Ende 2006 bis heute angepasst. Diese Fase wird jetzt in eine
ständige Einrichtung überführt und macht sich schon jetzt in der
täglichen Planungsarbeit bemerkbar, was sich noch verstärken wird.
|
|
SEPTEMBER 2007
|
AB 01.09.07: NEUE KONTAKTADRESSEN IN
BREMEN UND KLOSTERFELDE BEI BERLIN
Um direkte
Kontakte herstellen zu können,
wurden in Bremen und Klosterfelde bei Berlin Büros als Anlaufstellen
(Klosterfelde), bzw. auch als Betreuungsbüro (Bremen) eingerichtet.
Dort können vorbereitende Gespräche und Beratungen potentieller
Bauherren Statt finden bis hin zur Vertragsunterschrift für EFH oder
kleinere BV.
|
|
AUGUST 2007
|
NEUES DETAILBLATT FÜR DESIGNLINIE
STANDARD - NEUER STIL DER WEBSITE - VIELE NEUE BEISPIELBILDER
|
|
JUNI 2007
|
BAUKOSTENVERÄNDERUNGEN
Im ersten Halbjahr 2007 sind die
Baukosten gestiegen, vor allem im Technikbereich. Daher sind einige
unter HAUSBAU
aufgeführte Items angepasst worden.
ANGEKÜNDIGTES NEUES ÖKOHAUS IM WEB
Wie unten dargestellt, das angekündigte
neue Hausmodell in der Designlinie NEON AVANTGARDE.


ENTWICKLUNG EINER FRÜHEREN BAUSTELLE
(VILLA MAIENSTR.)
Es sind 3 Etappen
zu verfolgen, von links
nach rechts:Vorgefundene Situation Juli 2004, Öffnung als Terrassentür
Oktober 2004. Danach ging die Vervollständigung an Kollegen über, da
die eigenen Aufgaben der statischen Planung und Bauleitung, so wie der
architekturplanerischen Begleitung beendet waren. Die letzte Aufnahme
ist jetzt kurz vor der Fertigstellung erstellt worden und zeigt die
gelungene gestalterische und konstruktive Einordnung eines neuen
Elementes in ein Bauwerk aus den 60-er Jahren des 19. Jahrhunderts.
|
|
APRIL 2007
|
AUSBAUHÄUSER
Für
die
Designlinien KUBUS, STANDARD und NAEFH ist jetzt auch die
Kostenobergrenze für einen reduzierten Leistungskatalog (BAUBESCHREIBUNGEN für Ausbaustufen I und
II) vertraglich vereinbar. Die Kosten für die Ausbaustufe I liegen 200
€/m2 (KUBUS, STANDARD) bzw. 500€/m2 (NAEFH) unter der normalen
Kostenobergrenze, für die Ausbaustufe II 100 €/m2 (KUBUS, STANDARD)
bzw. 300 €/m2 (NAEFH) unter dieser.
BEITRAG IM DAB
Im DAB Monat April Seiten 55 ff erscheint
ein Artikel über die Berufspraxis in Venezuela, der von mir beigetragen
wurde.
|
|
JANUAR 2007
|
NEUE GRUNDRISSE
Jetzt
sind
die angekündigten, speziell auf Senioren zugeschnittenen
beispielhaften Grundrisse in eingeschossigen Häusern fertig gestellt,
die in den DESIGNLINIEN "Kubus", "Standard" und "Neon" im DESIGNBEREICH
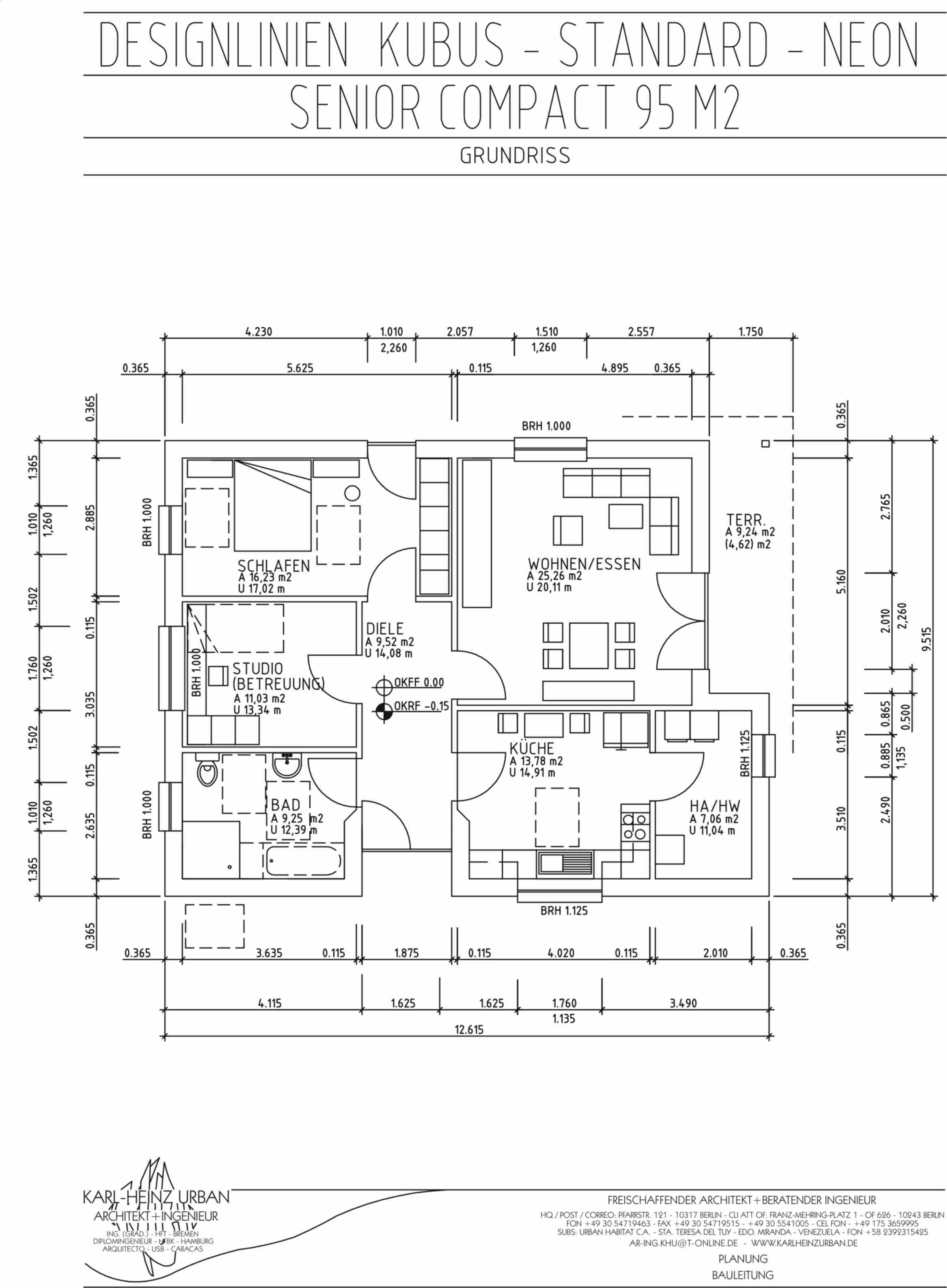
"Tradition" als jeweils 2 "Compact" und "Classic" dargestellt werden.
Eine Übertragung auf die anderen DESIGNLINIEN und DESIGNBEREICHE ist
jederzeit möglich. Auch die Baubeschreibungen sind hierfür erweitert
worden:


|
|
2006
|
|
|
SEPTEMBER
|
JOINT VENTURE FÜR DEN BAU VON
NORDAMERIKANISCHEN EFH BESCHLOSSEN
Mit der nun in
Deutschland etablierten Tyconhomes
gGmbH wurde vor kurzem ein Joint Venture Agreement für die
gemeinschaftliche Projektierung von EFH und anderen Bauwerken
unterzeichnet, dass in diesem Monat September in Kraft treten
wird. Mit diesem neuen Partner werden wieder BV aller Art, jedoch
hauptsächlich EFH in nordamerikanischer Holzbauweise unkomplizierter
möglich.
|
|
MAI
|
NEUE HAUSMODELLE
Ab sofort stehen
insgesamt 25
Basismodelle mit ungezählten Variationen zur Verfügung. Neu sind
Variationen zu einem Haus der Größe Classic mit 120 m2 Basis
Designlinie Standard, sowohl als Tradition-, als auch Avantgarde-Modell
in den Designlinien Kubus, Neon, and Mediterran.
|
|
APRIL
|
UMFRAGE
Eine Umfrage
unter den Kunden
hat
bis zum heutigen Datum nach Rücklauf eines großen Teils der Fragebögen
ergeben, dass in einem Rang von 1 für die beste und 5 für die
schlechteste Bewertung der erbrachten Leistungen ein Durchschnitt von
1,6 erreicht wurde. Dabei sind über 25 % besser, 63 % etwa so wie und
nur unter 12 % schlechter betreut worden, als sie es erwartet haben.
|
|
2005
|
|
|
SEPTEMBER
|
Neue DESIGNLINIE "Mediterran"
Die neue DESIGNLINIE "Mediterran" wird
hier beispielhaft mit dem Modell COMPACT vorgestellt
|
|
|
Neue EFH fertig
gestellt
In Zusammenarbeit mit
einer
Baubetreuungsfirma sind drei weitere sondergeplante EFH fertig gestellt
worden:

|
|
|
Neue
Items (Sonderausstattungen)
Auf
der Seite EINFAMILIENHAUSBAU werden weitere neue
Items (in rot) mit ihren Kosten vorgestellt, die neue
Fassadengestaltung ist hierunter zu sehen.

|
|
2004
|
|
|
NOVEMBER
|
Neue Designmöglichkeiten
Nach dem
begonnenen Ausbau des Bereiches
der Tragwerks- und Technikplanung, der eingeleiteten Umschichtung vom
geförderten zum gehobenerem EFH-Bereich und dem Anlaufen des
Sanierungs- und Restaurierungsbereiches ist mit einer Verbesserung der
Umsatz- und Gewinnprognose auf ca. 80% bzw. 70% des Vorjahres zu
rechnen, gegenüber den für Juli avisierten niedrigeren Prognosen. Unten
Fotos einer bei mir in Umbau befindlichen Gründerzeitvilla, technische
Planung und Bauleitung bei mir, Architektur und allgemeine Bauleitung
in Zusammenarbeit mit dem Kollegen Arch. Schweitzer.
|
|
JUNI
|
Zum 1. Juni ist in Zusammenarbeit mit
North American Homes Europe ein weiteres Nordamerikanisches Haus in
Berlin fertig gestellt worden.
|
|
FEBRUAR
|
New Northamerican One
Family House
Neues Nordamerikanisches
EFH
Ein neues
nordamerikanisches EFH ist
fertiggstellt. Es enthält mehrere interessante Deatils, z.B.
Schwimmbad- und Whirlpool-Bereich, Doppelgarage und doppelte Höhe im
Wohn- und Eingangsbereich, so wie weiteres. Ein Besichtigungstag fand
am 22.02.2004 statt.
|
|
2000 - 2003
|
|
|
|
NOVEMBER 2003
Einfamilienhäuser für Senioren und Behinderte
Ab Dezember
werden Einfamilienhäuser auf
Wunsch auch besonders für Senioren und Behinderte entworfen und
erstellt (Stufenlose Fußböden bis auf die Terrassen, Türen >1,00 m,
Duschbereich auf Fußbodenhöhe etc.).
JULI 2003
Zum 1. Juli ist
die Eintragung als
Beratender Ingenieur bei der Baukammer Berlin abgeschlossen. Hierdurch
können mehr und bessere professionelle Leistungen für den Kunden
erbracht werden.
JANUAR 2003
Ab sofort Informationen abrufbar (Links
im Vollständigen
Curriculum) über die während des Studiums besuchten
Universitäten.
OKTOBER 2000
Neues Planungs- und Bausystem für
Einfamilienhäuser vorgestellt
In Venezuela wird ein Planungs- und
Bausystem in Stahl vorgestellt, dass in modulierter Bau- und
Vermarktungsweise auf den mittelständischen Käufer von
Einfamilienhäusern abgestellt ist, wobei von der Lieferung eines
Grundmoduls bis zur Komplettlieferung in verschiedenen
Qualitätsvarianten alle Kundenwünsche inkl. Selbstbau erfüllt werden
können. Ab Anfang 2001 ist der Bau eines ersten modellhaften Hauses
vorgesehen.
FEBRUAR 2000
Materialunabhängiges Typenhaussystem
Die Arbeiten an einem
materialunabhängigen Typenhaussystem sind so weit abgeschlossen, dass
diese Planung sowohl in Deutschland als auch im Ausland eingesetzt
werden kann.
JANUAR 2000
URBAN HABITAT C.A. reaktiviert
In Venezuela wird die URBAN HABITAT C.A.
reaktiviert zur Aufnahme der Lieferung von Planungsleistungen an die
deutsche Zentrale.
|
|